Het Hooge Veld 12 – Zuidwolde
€ 434.500,- v.o.n.De bouw is gestart en er zijn nog maar 2 woningen beschikbaar! Genieten van gelijkvloers wonen in Zuidwolde, in een groene omgeving, en dicht bij alle voorzieningen? Dat is mogelijk in Bospark Ekelenberg. Hier verrijzen 12 onder architectuur ontworpen patiowoningen. Met alle voorzieningen op de begane grond kun je hier comfortabel en zorgeloos wonen. Het […]
De bouw is gestart en er zijn nog maar 2 woningen beschikbaar!
Genieten van gelijkvloers wonen in Zuidwolde, in een groene omgeving, en dicht bij alle voorzieningen? Dat is mogelijk in Bospark Ekelenberg. Hier verrijzen 12 onder architectuur ontworpen patiowoningen. Met alle voorzieningen op de begane grond kun je hier comfortabel en zorgeloos wonen. Het duurzame en landelijke karakter van de wijk zorgt ervoor dat u zich snel thuis zult voelen op deze plek.
Dit woonblok, met zijn speels verspringende gevels, omarmt het idee van stijlvol en harmonieus wonen met zijn unieke kenmerken. Deze woningen zijn ontworpen met een enkele woonlaag, waarbij het hart van de woning wordt gevormd door een centrale patio. Hier geniet je van gelijkvloers wooncomfort, waardoor de woning uitermate geschikt is voor kleine gezinnen en senioren. Elke woning biedt de luxe van privétuinen aan de zuidzijde, die grenzen aan een weelderige groenstrook, waardoor een oase van groen en rust ontstaat. De entree van de woningen bevindt zich aan de noordzijde en is toegankelijk via een gedeelde eigen weg. Voor extra gemak zijn er bergingen met overdekte opstelplaatsen voor containers en 2 eigen parkeerplaatsen.
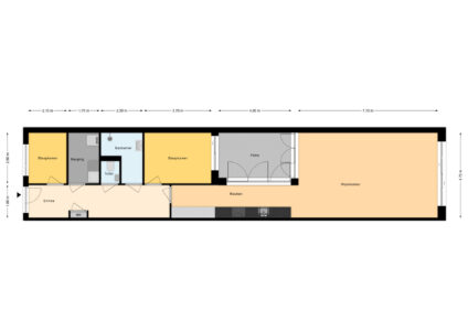
Bij het betreden van de woningen aan de noordzijde bevindt zich een lange gang, met voldoende ruimte voor een garderobe en kastruimte om uw spullen georganiseerd te houden. Aan de noordgevel van de woning bevindt zich een knusse, lichte slaapkamer. Naast de slaapkamer is er een handige bijkeuken met installaties en een opstelplaats voor uw wasmachine en droger. Een separaat toilet welke ingericht kan worden met hangend closet en fontein. De badkamer heeft de aansluitingen voor een wastafel en een douche. De hoofdslaapkamer grenst aan de centrale patio die middels een schuifpui te betreden is. Aan het einde van de gang betreed je de woonruimte. De lange wand voor een een keukenopstelling aan de patio (welke wordt voorzien van straatwerk) biedt niet alleen een praktische indeling, maar ook een aantrekkelijke omgeving om te koken en te genieten van het licht en de ruimte van de patio. De royale woonkamer, gelegen aan de zonnige zuidzijde, beschikt over een grote schuifpui die naadloos toegang biedt tot de tuin op het zuiden. Dit is de ideale plek om te ontspannen, te entertainen en te genieten van de zon.
Enkele voordelen op een rij:
Energiezuinig: Een nieuwbouwwoning is veel zuiniger dan een oudere woning. Deze woningen worden opgeleverd
met energielabel A+++. Zo heeft u zeer lage maandlasten voor uw energieverbruik. Er liggen maar liefst 12 zonnepanelen op de woning.
Duurzaam: Een nieuwbouwwoning is duurzamer, omdat deze het milieu minder belast en minder CO2 uitstoot. Dat komt onder meer door de goede isolatie in combinatie met houtsysteembouw.
Onderhoud: Alles is fris en nieuw, dus geen last van achterstallig onderhoud. Daardoor weinig onderhoudskosten en geen verrassingen.
Gezond binnenklimaat: De combinatie houtsysteembouw en het installatiesysteem zorgen voor een zeer comfortabele woning met een gezond binnenklimaat. De multi-split aircosysteem regelt zowel de verwarming als de verkoeling.
Inrichting: De look & feel van de nieuwe woning helemaal zelf bepalen, leuk! Naast de wand- en vloerafwerking zijn ook de keuken, badkamer en toilet door de nieuwe eigenaar zelf te bepalen.
Bijzonderheden:
– levensloopbestendig;
– energiezuinig;
– af te werken naar eigen smaak;
– meer-/minderwerkopties zijn reeds bepaald (de technische omschrijving wijkt hierdoor af);
– prijzen zijn vast tot 01 april 2026.
Alles wat u nodig heeft, vindt u gewoon op loop- en fietsafstand van uw nieuwe woning in Bospark Ekelenberg. Op slechts 800 meter liggen al de eerste centrumvoorzieningen van het dorp Zuidwolde; winkels, de bouwmarkt, een basisschool, een huisartsenpraktijk en sportfaciliteiten.
Zuidwolde ligt in het hart van Drenthe, dus mooi centraal en dichtbij alle uitvalswegen. Zwolle ligt op een half uurtje rijden, Amsterdam en Amersfoort is slechts binnen 1,5 uur te bereiken. In een kwartier bent u met de auto al in Hoogeveen, in 20 minuten in Meppel en in Ommen. In een uur rijden bent u al in Groningen.
Aan de zuidkant wordt Zuidwolde begrensd door de Reest, de minst aangetaste beek van Drenthe. De Reest wordt omzoomd door prachtige bos- en heidegebieden waar verschillende fiets- en wandelroutes doorheen lopen.
Overdracht
- Status
- Beschikbaar
- Vraagprijs
- € 434.500,- v.o.n.
- Aanvaarding
- In overleg
- Woonoppervlakte
- 90 m2
- Inhoud
- 398 m3
Overdracht
- Status
- Beschikbaar
- Vraagprijs
- € 434.500,- v.o.n.
- Aanvaarding
- In overleg
- Woonoppervlakte
- 90 m2
- Inhoud
- 398 m3
- Soort object
- Woonhuis
- Type woning
- Tussenwoning
- Bouwvorm
- Nieuwbouw
- Soort
- Bungalow
- Bouwjaar
- 2026
- Ligging
- Aan rustige weg, In woonwijk
- Woonoppervlakte
- 90 m2
- Perceel oppervlakte
- 180 m2
- Oppervlakte externe bergruimte
- 6 m2
- Inhoud
- 398 m3
- Aantal kamers
- 3
- Aantal slaapkamers
- 2
- Isolatievormen
- Volledig geïsoleerd
- Verwarming
- Hete lucht verwarming, Warmtepomp
- Warmwater
- Elektrische boiler eigendom
- Tuintypen
- Achtertuin, Patio atrium
- Hoofdtuin
- Achtertuin
- Hoofdtuin oppervlakte
- 30 m2
- Positie
- Zuid
- Achterom
- Nee
- Kwaliteit
- Aan te leggen
- Soort
- Vrijstaand hout
- Isolatievormen
- Geen isolatie
- Oppervlakte externe bergruimte
- 6 m2
- Voorzieningen
- Voorzien van elektra
- Soorten
- Parkeerplaats, Geen garage
- Oppervlakte
- 23 m2
- Dak type
- Plat dak
- Voorzieningen
- Mechanische ventilatie, Airconditioning, Schuifpui, Glasvezel kabel, Zonnepanelen, Natuurlijke ventilatie
- Permanente bewoning
- Ja
- Waardering
- Uitstekend
- Waardering
- Uitstekend
- Bijzonderheden
- Toegankelijk voor ouderen, Toegankelijk voor minder validen
- Huidig gebruik
- Bouwkavel
- Huidige bestemming
- Wonen
Plaats dan een zoekopdracht in ons nieuwe zoeksysteem! Je ontvangt van ons alleen de woningen in je inbox waar je echt blij van wordt.
Dat wil ik →









