Prieswijk 44 – Elim

€ 350.000,- k.k.

Ben jij op zoek naar een nette twee-onder-een-kapwoning in het rustige dorp Elim? Dan is Prieswijk 44 zeker het bekijken waard. Deze solide doorzonwoning is gebouwd in 1989 en beschikt over een goede basis met volledige isolatie. Dankzij de 9 zonnepanelen uit 2024 en energielabel A woon je hier comfortabel en toekomstgericht. De royale aangebouwde […]

Ben jij op zoek naar een nette twee-onder-een-kapwoning in het rustige dorp Elim? Dan is Prieswijk 44 zeker het bekijken waard.

Deze solide doorzonwoning is gebouwd in 1989 en beschikt over een goede basis met volledige isolatie. Dankzij de 9 zonnepanelen uit 2024 en energielabel A woon je hier comfortabel en toekomstgericht. De royale aangebouwde garage met carport biedt extra bergruimte en gemak. De zonnige tuin op het zuiden maakt het geheel compleet en zorgt voor volop mogelijkheden om buiten te genieten.

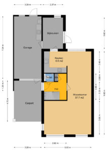
Indeling van de woning
Je komt binnen in de hal met toegang tot het toilet, de vernieuwde meterkast (2024) en de trapopgang naar de verdieping. Vanuit de hal bereik je de lichte woonkamer met uitzicht op de voortuin, voorgelegen straat en gemeentegroen. De keuken is praktisch ingedeeld, voorzien van o.a. oven, vaatwasser en inductiekookplaat, en biedt voldoende ruimte voor dagelijks gebruik. Vanuit de keuken bereikt u de ruime bijkeuken, die toegang biedt tot de royale garage. De bijkeuken is uitgerust met verwarming en een aansluiting voor de wasmachine. Ook de aangrenzende garage is uitgerust met verwarming en beschikt over een kraan met warm en koud water.

Op de eerste verdieping bevindt zich de overloop met 3 slaapkamers waarvan 1 slaapkamer is voorzien van een dakkapel. De nette badkamer is vernieuwd in 2010 en is ingedeeld met een douche, toilet en een wastafelmeubel.

De tweede verdieping is bereikbaar via een vaste trap en biedt extra bergruimte en mogelijkheden voor bijvoorbeeld een extra slaapkamer of werkruimte.

Ligging
De woning is gelegen in een rustige en kindvriendelijke woonwijk in Elim. Op loop- en fietsafstand bevindt zich het prachtige recreatiegebied Schoonhoven, met zijn bosrijke omgeving, wandelpaden, zwemwater en recreatiemogelijkheden.

Het dorp biedt diverse voorzieningen. Je vindt er onder andere een huisarts, fysiotherapeut, apotheek, supermarkt, drogist, slager en meerdere basisscholen. Ook op het gebied van sport en ontspanning is er volop keuze dankzij de diverse sportverenigingen die het dorp rijk is.

Het dorp Elim ligt op slechts 15 autominuten van grotere plaatsen zoals Hoogeveen, Coevorden en Slagharen. Dankzij de nabijheid van de snelweg en andere uitvalswegen (binnen 10 autominuten bereikbaar) geniet u hier van optimale bereikbaarheid, zonder in te leveren op rust en ruimte.

Kenmerken
– Bouwjaar 1989
– Volledig geïsoleerd
– Energielabel A
– 9 zonnepanelen (2024)
– 3-fasen stroomaansluiting (2024)
– 2 glasvezelaansluitingen (Delta/KPN)
– Aangebouwde ruime garage met carport
– Zonnige tuin op het zuiden
– Gelegen in rustige woonwijk

Wil jij comfortabel en energiezuinig wonen in een rustige woonomgeving? Dan nodigen wij je van harte uit om Prieswijk 44 in Elim zelf te komen bezichtigen.

Kenmerken van deze woning
Overdracht
Status
Verkocht
Vraagprijs
€ 350.000,- k.k.
Aanvaarding
In overleg
Woonoppervlakte
101 m2
Inhoud
460 m3
Kenmerken van deze woning
Overdracht
Status
Verkocht
Vraagprijs
€ 350.000,- k.k.
Aanvaarding
In overleg
Woonoppervlakte
101 m2
Inhoud
460 m3
Bouwvorm
Soort object
Woonhuis
Type woning
Twee onder één kapwoning
Bouwvorm
Bestaande bouw
Soort
Eengezinswoning
Bouwjaar
1989
Ligging
Aan rustige weg, In woonwijk, In bosrijke omgeving
Indeling
Woonoppervlakte
101 m2
Perceel oppervlakte
280 m2
Oppervlakte externe bergruimte
0 m2
Inhoud
460 m3
Aantal kamers
5
Aantal slaapkamers
3
Energie
Isolatievormen
Dakisolatie, Muurisolatie, Vloerisolatie, Dubbelglas
Verwarming
CV ketel
Warmwater
CV ketel
CV ketel type
Bosch
Buitenruimte
Tuintypen
Achtertuin, Voortuin
Hoofdtuin
Achtertuin
Hoofdtuin oppervlakte
112 m2
Positie
Zuid
Achterom
Nee
Kwaliteit
Fraai aangelegd
Bergruimte
Oppervlakte externe bergruimte
0 m2
Parkeergelegenheid
Soorten
Aangebouwd steen, Carport
Voorzieningen
Verwarming, Elektra, Water
Capaciteit
1
Oppervlakte
23 m2
Isolatievormen
Geen isolatie
Totaal aantal garages
1
Dak
Dak type
Zadeldak
Voorzieningen
Voorzieningen
Mechanische ventilatie, TV kabel, Buitenzonwering, Dakraam, Glasvezel kabel, Zonnepanelen, Natuurlijke ventilatie
Overige
Permanente bewoning
Ja
Waardering
Goed
Waardering
Goed
Bijzonderheden
Gedeeltelijk gestoffeerd
Huidig gebruik
Woonruimte
Huidige bestemming
Woonruimte
Brochures
Jouw droomwoning nog niet gevonden?

Plaats dan een zoekopdracht in ons nieuwe zoeksysteem! Je ontvangt van ons alleen de woningen in je inbox waar je echt blij van wordt.

Dat wil ik →